This site offers basic functionality without JavaScript, but do expect a degraded user experience.
Europe
Trailer Application Guide
Air Suspension
Lift Axle Valves
ILAS III
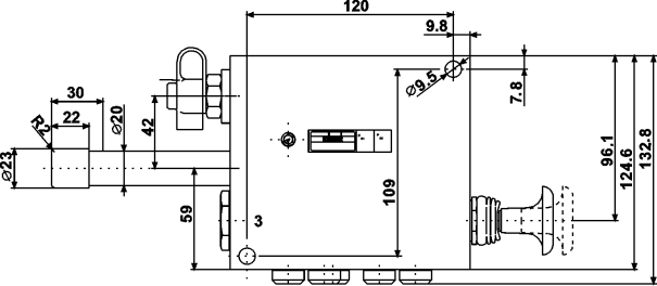
Technical data
SUMS
Electronic Braking Systems
ABS
Brake Components
Actuators
Air Suspension
System Description
Levelling valves
Raise & Lower Valves
Lift Axle Valves
ILAS I
ILAS III
Technical data
Settings
Variants
ILAS-E+
Documents
Air Disc Brakes
Brake Adjuster
Software
Brake and suspension schematics
Technical data